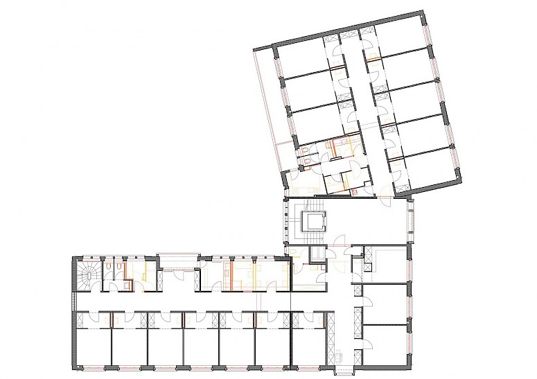
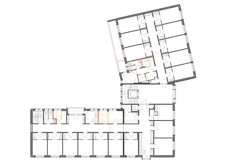
1959/61 als Pflegerinnenschule erstellt und erweitert, ist die Liegenschaft heute Eigentum der Bürgergemeinde Basel und wird vom Unispital als Hautpmieterin zu Büro- und Schulungszwecken genutzt. Das Gebäude wurde unter Betrieb umfassend saniert.
Neben der Erneuerung der kompletten Haustechnik ging es dabei um Grundriss-optimierungen unter Wahrung der zeittypischen Bausubstanz. Die Arbeiten fanden trakt- und geschossweise statt, wobei die jeweils betroffenen Personen in einem Provisorium im DG untergebracht wurden Nebst inneren Bereichen, wie Teecküchen, WC-Anlagen, Schulungs- und Büroräumen wurden auch die Gebäudehülle mit Fassaden inkl. Sonnenschutz und Flachdächern sowie die Umgebung erneuert und aufgewertet. Speziell zu erwähnen sind der Einbau einer neuen Lüftung und die Erstellung einer PV-Anlage im Zusammenspiel mit einer ökologisch hochwertigen Dachgestaltung.













