Mit Fertigstellung dieses Ausbau-Projekts entstand im Riehener Zentrum Niederholz eine zeitgemässe medizinische Infrastruktur, welche Funktionalität, Komfort und Architekturqualiät vereint.
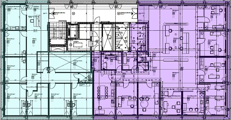
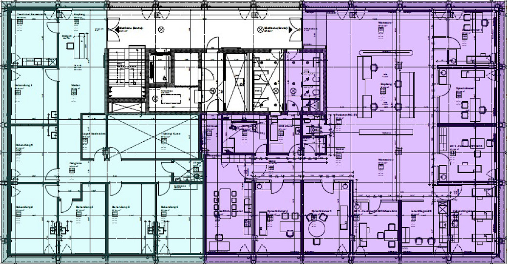
In einer Machbarkeitsstudie prüften Vischer Architekten zunächst verschiedene Nutzungsszenarien für die freie Fläche des 3.OG. Nach Abwägung von Wirtschaftlichkeit und Synergien entschied man sich für eine Kombination aus Arztpraxis (375 m2) und Physiotherapie (240 m2). Dabei wurde grosser Wert auf eine klare Raumorganisation gelegt, die effiziente Abläufe ermöglicht. Die vorhandenen Sanitäranlagen wurden so aufgeteilt, dass sie von beiden Praxen getrennt nutzbar sind. Die Materialisierung mit Sichtbetondecken, Linoleumböden und punktuellen Akustikpanelen wirkt schlicht und funktional. Vischer Architekten fungierten, in Zusammenarbeit mit dem Architekturbüro Clauss Kahl Merz Atelier, als Generalplaner für die Planung und Realisierung des gesamten Innenausbaus. Die Umsetzung der betrieblichen Anforderungen erfolgte in enger Abstimmung mit der St. Clara-Stiftung als Bauherrschaft sowie auch mit den künftigen Nutzern - und zwar jeweils unter Berücksichtigung der Schnittstellen zwischen den Teilprojekten.











