Umbau Pflegezentrum - Falkensteinerstrasse 30, Basel

Bürgerspital Basel

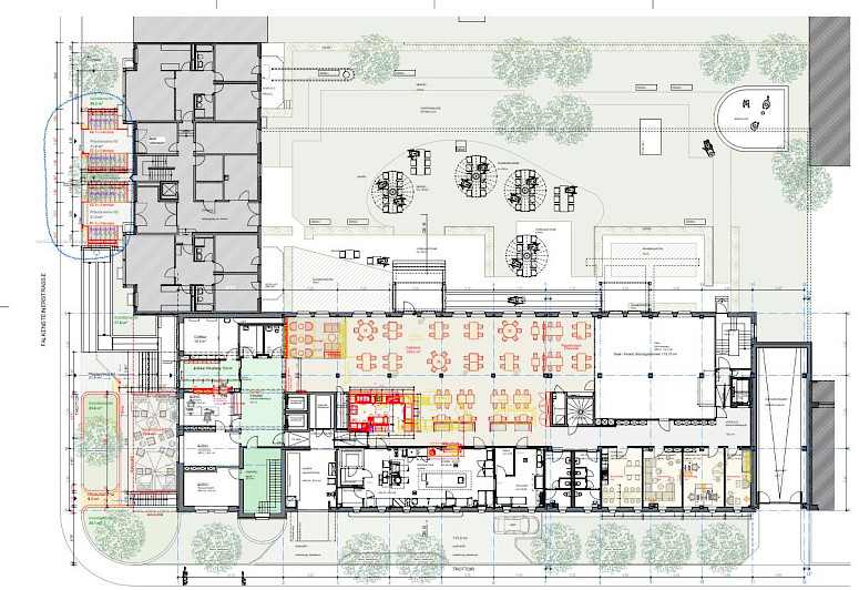
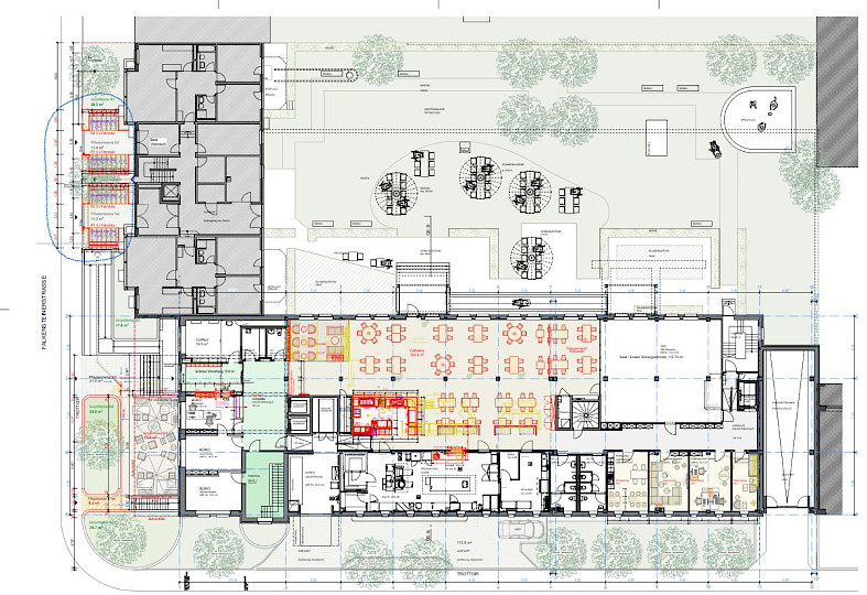
Das Pflegezentrum an der Falkensteinerstrasse verfügt über 86 Betten und verteilt sich über fünf Geschosse. Der Projektauftragbestand darin, sdurch Umbauten eine zeitgemässe, gestalterisch attraktive, funktionale und ökologisch vorbildliche Anlage mit hohen Qualitäten im Innen- und Aussenraum zu schaffen.

Dafür wurden im Erdgeschoss der bestehende Restaurantbereich aufgewertet und an die geltenden Vorschriften angepasst, die Sanitäranlaen erneuert und die Eingangssituation einladender gestaltet. Auf dem Vorplatz, beim Treppenaufgang, entstand eine neue Terrasse. Diese wurde mit einer Sonnenmarkise sowie einem Lärmschutz zur Dornachrstrasse hin ausgestattet, damit die Bewohner ihren Aufenthalt im Freien geniessen können. An den bestehenden Rabatten wurden einige Anpassungen vorgenommen, um neu versiegelte Flächen durch Grünflächen zu ersetzen. Bemerkenswert an diesem Generalplaner-Projekt war die Umsetzung bei laufendem Betrieb. Mittels der gestaffelten Einhausung von Teilbereichen konnte - zwar mit Einschränkungen - auf Ersatzflächen sogar der Cafeteria-Betrieb weitergeführt werden.      

Umbau Pflegezentrum - Falkensteinerstrasse 30, Basel
Umbau Pflegezentrum - Falkensteinerstrasse 30, Basel
Umbau Pflegezentrum - Falkensteinerstrasse 30, Basel
Umbau Pflegezentrum - Falkensteinerstrasse 30, Basel
Umbau Pflegezentrum - Falkensteinerstrasse 30, Basel
Umbau Pflegezentrum - Falkensteinerstrasse 30, Basel
Umbau Pflegezentrum - Falkensteinerstrasse 30, Basel
Umbau Pflegezentrum - Falkensteinerstrasse 30, Basel
Arrow Left Icon Arrow Right Icon Zoom Icon
Umbau Pflegezentrum - Falkensteinerstrasse 30, BaselUmbau Pflegezentrum - Falkensteinerstrasse 30, BaselUmbau Pflegezentrum - Falkensteinerstrasse 30, BaselUmbau Pflegezentrum - Falkensteinerstrasse 30, BaselUmbau Pflegezentrum - Falkensteinerstrasse 30, BaselUmbau Pflegezentrum - Falkensteinerstrasse 30, BaselUmbau Pflegezentrum - Falkensteinerstrasse 30, BaselUmbau Pflegezentrum - Falkensteinerstrasse 30, Basel
Dieses Website verwendet Cookies
Diese Website verwendet Cookies, die für eine vollständige Funktion der Website erforderlich sind.
Dieses Website verwendet Cookies
Diese Website verwendet Cookies, die für eine vollständige Funktion der Website erforderlich sind.
Ihre Einstellungen wurden gespeichert