Als „zentrale Dienstleisterin der Gesamtakademie“ sollte die neue Bibliothek der Musik-Akademie möglichst transparent und publikumsfreundlich gestaltet sein.
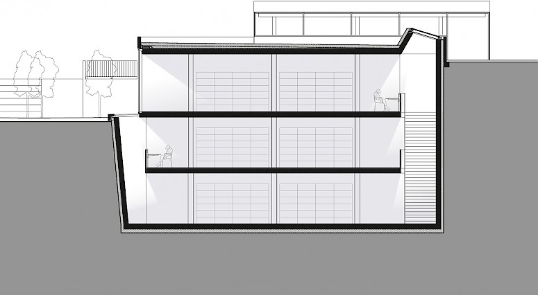
Realisiert wurde das Neubauvorhaben in Form eines dreigeschossigen, vorwiegend unterirdischen Baukörpers, der sich dank seines begrünten Flachdachs harmonisch in die parkähnliche Umgebung einfügt. Man betritt das Gebäude durch einen einladenden, allseits verglasten Empfangspavillon. Das Freistellen des ansonsten unterirdischen Hauptvolumens auf zwei Seiten der Ebene -1 und zwei Oblichtbänder erlauben eine natürliche Belichtung auch der unteren Geschosse.












