Der sanierungsbedürftige Bestandsbau sollte ersetzt werden durch einen grösseren Neubau, der besser auf die aktuellen Nutzerbedürfnisse abgestimmt ist.
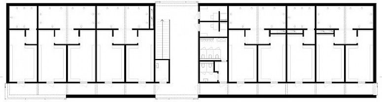
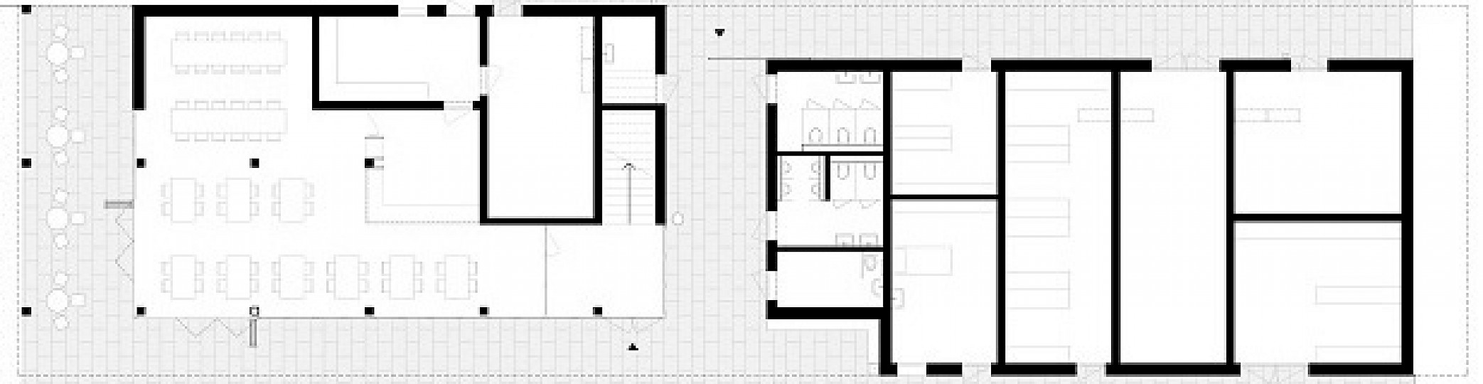
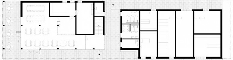
Der Entwurf von Vischer Architekten AG setzt auf eine klare Volumetrie und Fassaden-gestaltung. Der lang gezogene, konstruktive Holzbau erstreckt sich parallel zum Spielfeld. Eine Auskragung auf der Süd- und Ostseite führt den Besucher zum Haupteingang. Dieser liegt, mit Blick auf das Feld, in der Mitte der Ostfassade und fungiert so als Treff- und Angelpunkt des Gebäudes. Das Clublokal im EG verfügt über eine grosse, zum sportlichen Geschehen gerichtete Glasfront, die im Sommer dank Flatelementen geöffnet werden kann. Alle Garderoben und Toiletten sind im OG platziert. Im Aussenbereich erhält das Ensemble durch Bäume, Bänke und Veloparkplätze eine eigene, ablesbare Adresse.









